Projektai
mūsų Darbai
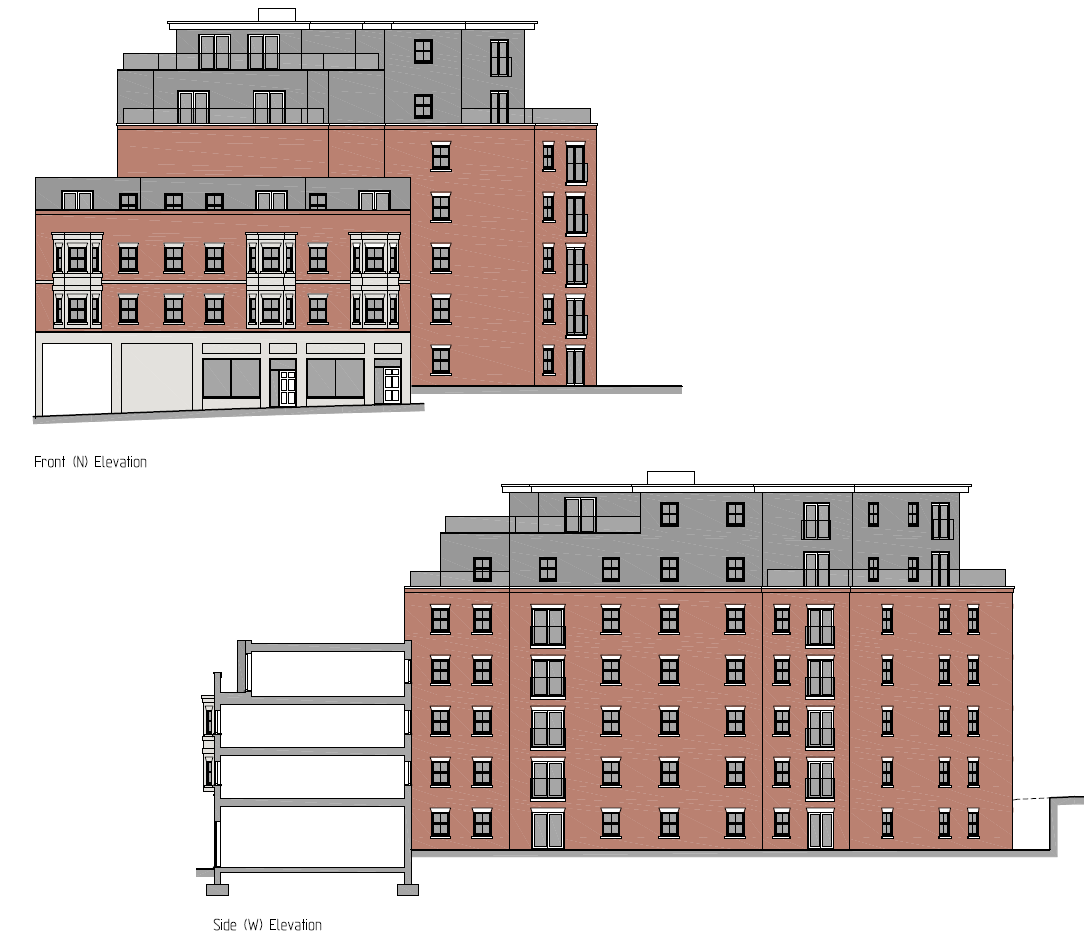
Station Plaza Projektas
Trijų daugiaaukščių gyvenamųjų pastatų kompleksas su gelžbetoninių kolonų ir monolitinių gelžbetoninių perdangų laikančiąja sistema.
Komplekso sudėtis: vienas 7 aukštų pastatas ir du 5 aukštų pastatai. Bendras plotas – 10 275 m².

Bollo lane projektas
4 aukštų daugiabutis gyvenamasis namas. Pastato laikančiąją konstrukcinę sistemą sudaro plieninės sijos su Beam and Block perdangomis, o išorinės ir vidinės sienos mūrinės. Bendras plotas – apie 1 000 m².

Sarum house Projektas
Du gyvenamieji namai. Pastatų konstrukcinę sistemą sudaro mūrinės išorinės ir vidinės sienos, perdangos iš plieninių sijų su HCS elementais, stogas šlaitinis – medinis. Bendras plotas – apie 900 m².


Luton Projektas
7 aukštų daugiabutis gyvenamasis pastatas. Pagrindinę konstrukcinę sistemą sudaro plieninės sijos su HCS perdangomis, išorinės ir vidinės sienos – mūrinės. Bendras plotas – apie 4 690 m².

Church hill Projektas
Trijų aukštų daugiabutis gyvenamasis pastatas ir keturi skirtingų tipų gyvenamieji namai. Konstrukcinę sistemą sudaro medinės perdangos su „Posi joists“ sijomis ir plieninėmis atramomis, išorinės bei vidinės sienos – mūrinės, stogai – mediniai. Bendras pastatų plotas – apie 2 240 m².


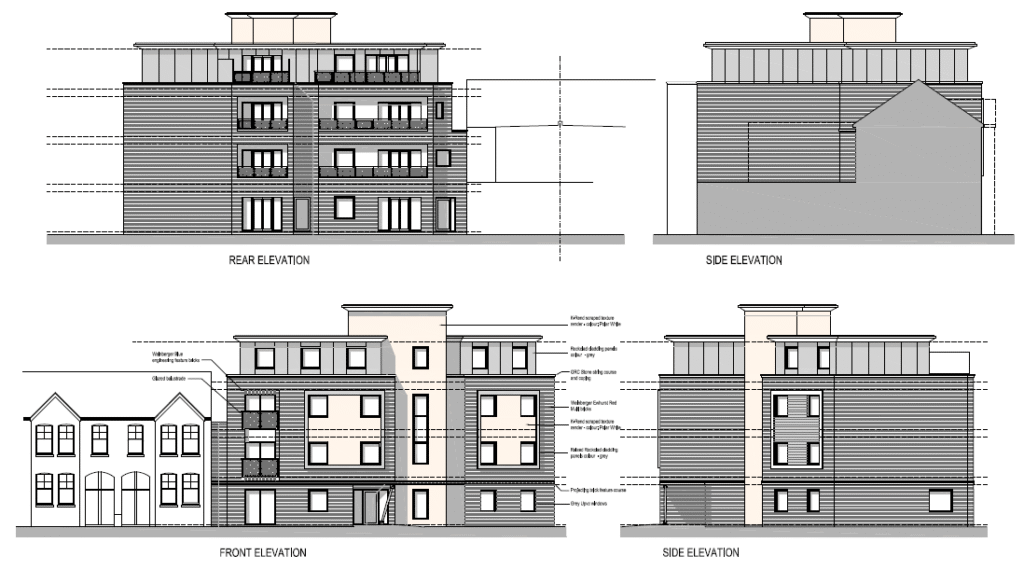
Britnell Court Projektas
Trijų aukštų daugiabutis gyvenamasis pastatas. Pagrindinę konstrukcinę sistemą sudaro HCS perdangos su plieninėmis sijomis, išorinės ir vidinės sienos – mūrinės, stogas – slaitinis, medinis. Bendras plotas – apie 1 000 m².

